Home designs

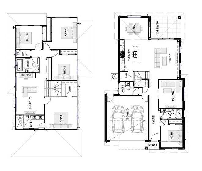
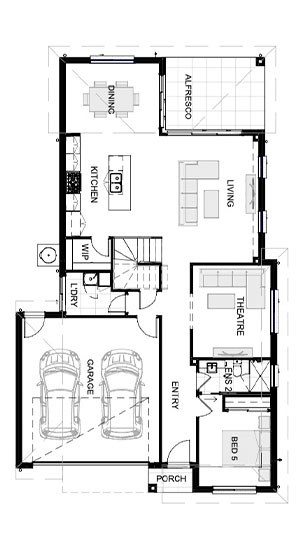
Somerville 30

Everyday living meets thoughtful design

Smart design for comfortable family living

Bed

5

Bath

3

Car

2

Block width

12.5m

Our featured homes

Floorplans

The floorplan is designed to maximise space and flow, with open living areas and well-positioned bedrooms to suit modern family living.